Sold STC
Guide Price £330,000
Phone 01359 245245 or email [email protected]
"*" indicates required fields




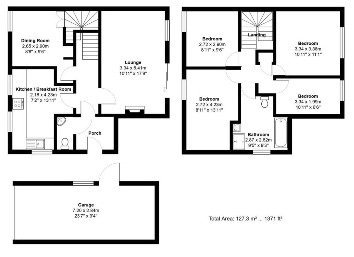
Entrance Porch: Featuring a tiled floor and radiator.
Read full description Entrance Porch: Featuring a tiled floor and radiator.
Entrance Hall: Stairs to the first floor, laminate-style flooring, and radiator.
Cloakroom: With a window to the side, low-level WC, pedestal wash hand basin, part-tiled walls, and tiled flooring.
Sitting Room: Overlooking the rear garden, with patio doors leading outside, a feature fireplace.
Dining Room: With window to the front, built-in cupboard, feature brick alcove, laminate-style flooring
Kitchen: Having front and side aspect and a range of wall and base units with worktops, one and a half bowl sink with drainer, part tiled splashbacks, eye-level electric double oven, gas hob with extractor, integrated dishwasher, space for fridge/freezer, and plumbing for a washing machine.
First Floor Landing: A welcoming area having loft access (with loft ladder) which is boarded and has the benefit of power. Airing cupboard housing the boiler.
Bedroom One: A bright and airy room with rear aspect that affords countryside views beyond the garden.
Bedroom Two: A further double bedroom positioned to the front of the property, which has a dual aspect.
Bedroom Three: Having front aspect. Bedroom Four: Again, with rear aspect and countryside views.
Bathroom: Good sized family bathroom featuring a side window, corner shower cubicle, panelled bath, low-level WC, pedestal wash hand basin, part tiled splashbacks and heated towel rails.
Outside The front garden is laid to lawn with mature shrubs and a driveway providing off-road parking, leading to a single garage with electric door, power, light, personnel door, and side window.
The rear garden offers a terrace area adjacent to the property, lawn area and well stocked shrub flowering borders.
SERVICES: Mains water, drainage and electricity are connected. Gas fired central heating. NOTE: None of these services have been tested by the agent.
LOCAL AUTHORITY: Mid Suffolk District Council. Band C
EPC Rating: D
BROADBAND AND MOBILE: Please see our website and Ofcom.org.uk for further details
Contact David Burr Woolpit :
01359 245245 or [email protected]