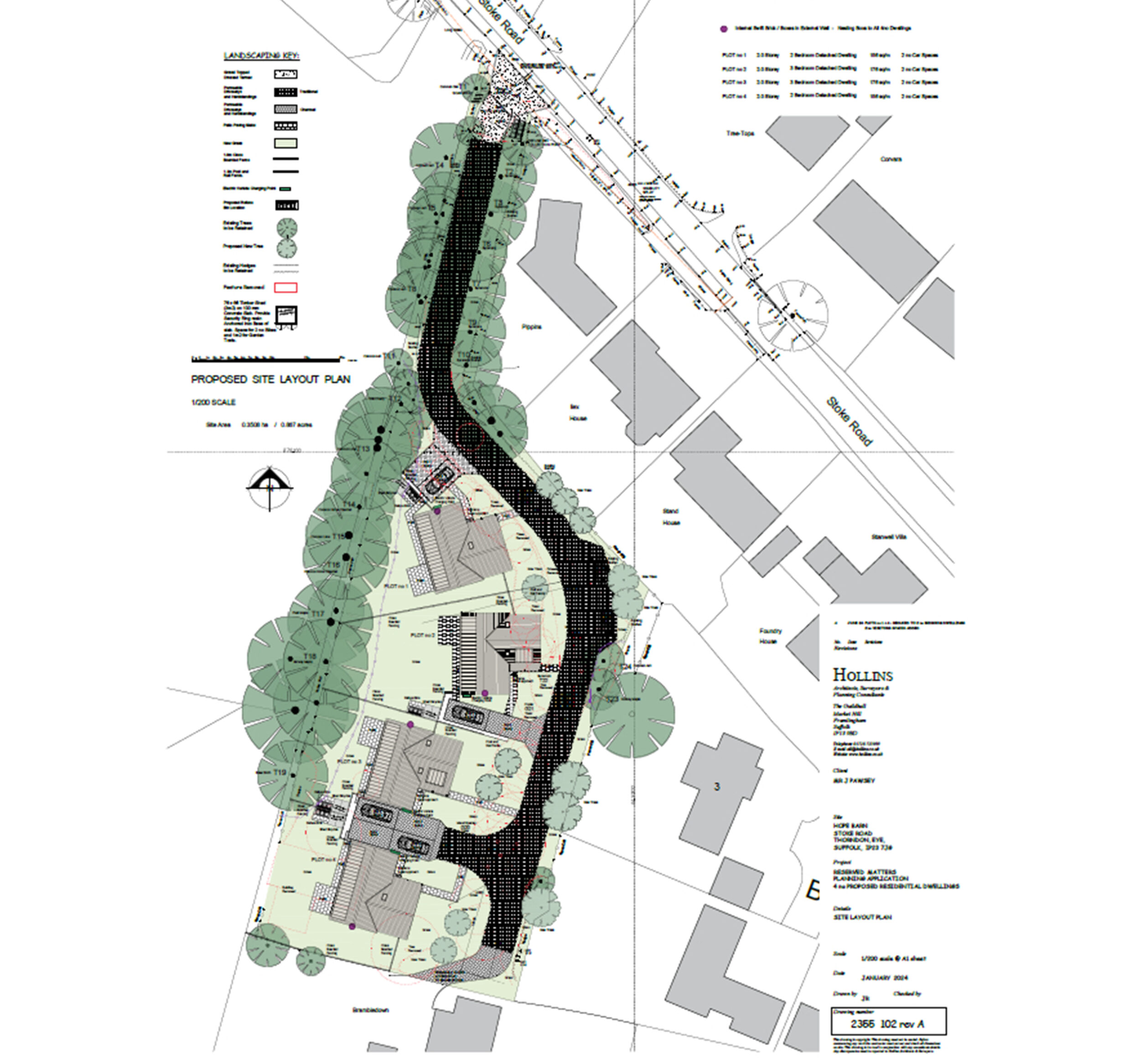
Planning has been passed for four detached 2.0 story chalet bungalows.
*Plots 1 = 156m2 two-bedroom detached chalet bungalow.
*Plot 2 = 176m2 three-bedroom detached chalet bungalow.
*Plot 3 = 176m2 three-bedroom detached chalet bungalow.
*Plot 4 = 156m2 two-bedroom detached chalet bungalow
Total = 664m2 / 7147sq/ft.
All plots come with off road parking for two vehicles per dwelling.
Strictly by prior appointment through DAVID BURR. Please not that is private land.
Price £485,000
View the planning permission details here.
Contact Land and New Homes on: [email protected] / 01787 888 699



Thorndon is a historic village and civil parish located in Eye, Suffolk, known for its picturesque countryside, traditional English architecture, and rich heritage. It features notable landmarks such as Thorndon Hall, a grand country house with beautiful gardens and a golf course.
The village has a charming community atmosphere, with local pubs, churches, and scenic walking paths that reflect its long-standing history in the region. Thorndon’s proximity to Eye makes it a popular spot for visitors exploring Suffolk’s rural charm and historical sites.
If you’re looking to sell your home, or would just like to know how much your property is worth get in touch
Our sales / lettings team will then get back to you with a valuation based on their experience and local property values. At the same time we can advise you on current market conditions and local property values.