For Sale
£500,000
Phone 01359 245245 or email [email protected]
"*" indicates required fields




PLANNING Full planning was passed via East Suffolk Council in January 2025 for two large detached executive dwellings with separate garaging.
Read full descriptionPLANNING Full planning was passed via East Suffolk Council in January 2025 for two large detached executive dwellings with separate garaging.
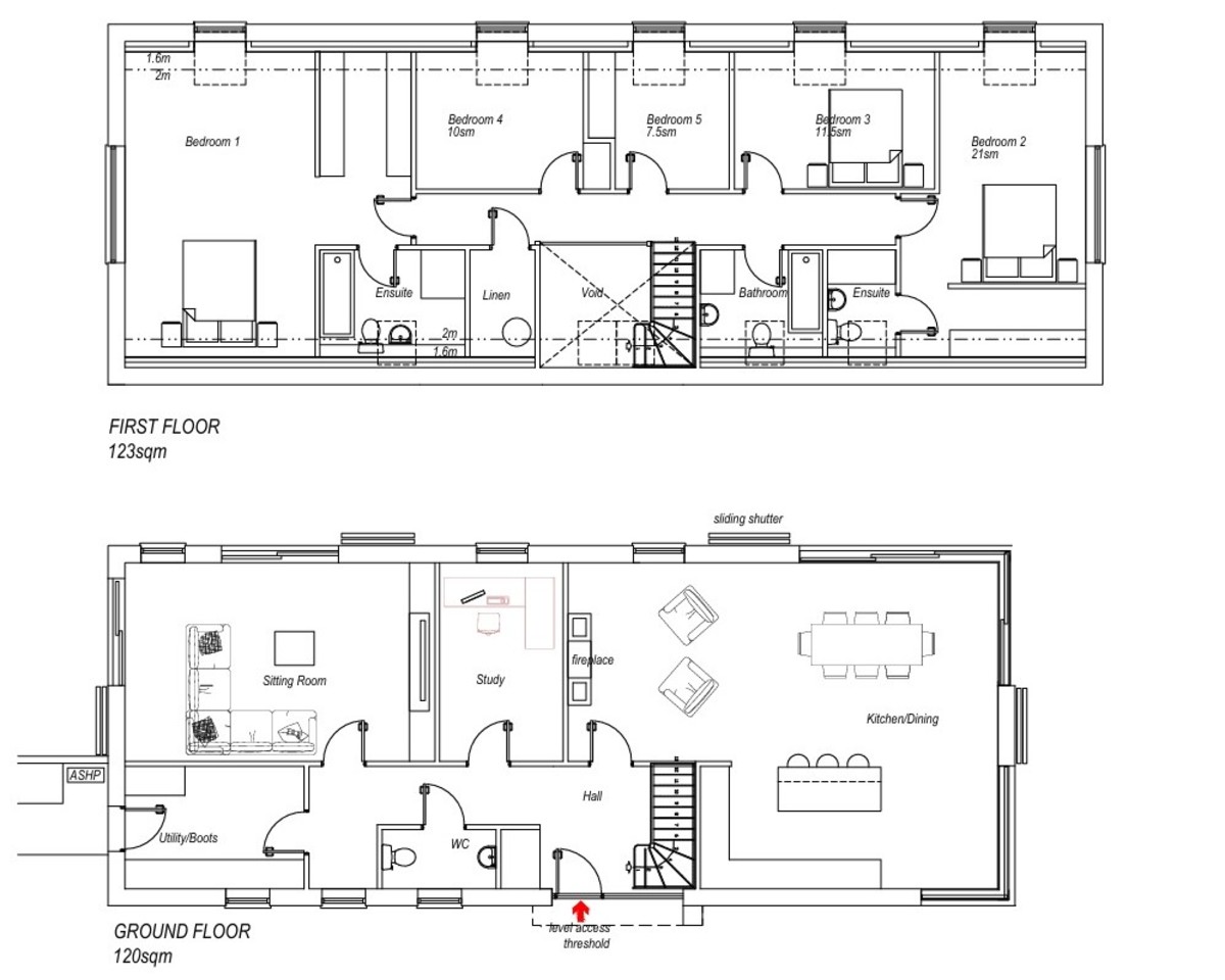
North House - 243m2 / 2616sq.ft (not including garage) is a five bedroom detached property with two en suites and walk in wardrobes to bedroom one and two along with three more bedrooms on the first floor. Ground floor comprises of a sitting room, utility, study and large kitchen diner to the rear of the property.
South House - 210m2 / 2260sq.ft (not including garage) is a five bedroom detached property with two en suites and walk in wardrobe to the master bedroom. Ground floor Ground floor comprises of a sitting room, utility, study and large kitchen diner to the rear of the property.
Further details can be found on the East Suffolk Council website Ref: DC/24/2920/FUL
Please note that CIL & BNG will be applicable if the land is brought from development.
LAND The terrain of the land is reasonably flat with a wide access entrance coming off Mill Road. The land has a ditch running on the Southern boundary. The sale of the land comes with a part ownership of pond which is also part owned by the neighbouring property which is located on the North West boundary.
SERVICE The seller believes that mains water and drainage is located within the road at the front of the land with power coming across above the Northern parcel of the land.
Contact David Burr Woolpit :
01359 245245 or [email protected]