For Sale
Guide Price £299,995
Phone 01787 883144 or email [email protected]
"*" indicates required fields




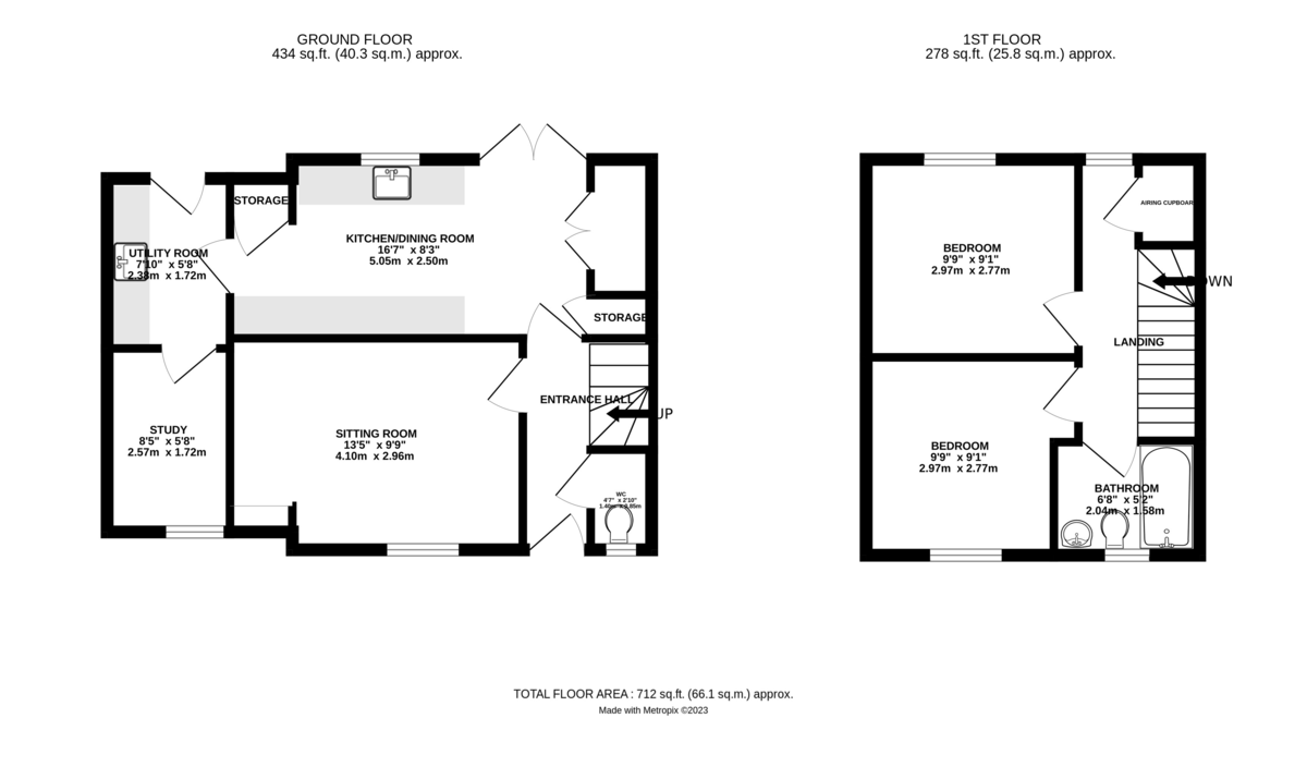
A recently built semi-detached cottage within a short walking distance of countryside walks and the amenities of Long Melford. The property contains a sitting room, kitchen/dining room, utility, study and ground floor cloakroom. Two first floor bedrooms are served by a family bathroom and there is also a fully private enclosed garden and an off-road parking space.
Read full description A recently built semi-detached cottage within a short walking distance of countryside walks and the amenities of Long Melford. The property contains a sitting room, kitchen/dining room, utility, study and ground floor cloakroom. Two first floor bedrooms are served by a family bathroom and there is also a fully private enclosed garden and an off-road parking space.
ENTRANCE HALL:
SITTING ROOM: 13'5" x 9'9" (4.10m x 2.96m)
KITCHEN/DINING ROOM: 19'4" x 8'3" (5.90m x 2.50m)
UTILITY: 7'10" x 5'8" (2.38m x 1.72m)
STUDY: 8'5" x 5'8" (2.57m x 1.72m)
CLOAKROOM:
First floor
LANDING:
BEDROOM 1 9'9" x 9'1" (2.97m x 2.77m)
BEDROOM 2 9'9" x 9'1" (max) (2.97m x 2.77m)
BATHROOM: 6'8" x 5'2" (2.04m x 1.58m)
SERVICES: Main water and drainage. Main electricity connected. Heating and hot water through air source heat pump. NOTE: None of the services have been tested by the agent.
LOCAL AUTHORITY: Babergh and Mid Suffolk District Council, Endeavour House, 8 Russell Road, Ipswich, Suffolk. IP1 2BX (0300 1234000).
COUNCIL TAX BAND: C
COMMUNICATION SERVICES (SOURCE OFCOM): Broadband: Yes. Speed: up to 1000 mbps download, up to 220 mbps upload. Phone signal: Yes - Three, O2, Vodafone.
NOTE: David Burr make no guarantees or representations as to the existence or quality of any services supplied by third parties. Speeds and services may vary and any information pertaining to such is indicative only and may be subject to change. Purchasers should satisfy themselves on any matters relating to internet or phone services by visiting the Ofcom website.
VIEWING: Strictly by prior appointment only through DAVID BURR.
NOTICE: Whilst every effort has been made to ensure the accuracy of these sales details, they are for guidance purposes only and prospective purchasers or lessees are advised to seek their own professional advice as well as to satisfy themselves by inspection or otherwise as to their correctness. No representation or warranty whatsoever is made in relation to this property by David Burr or its employees nor do such sales details form part of any offer or contract.
AGENTS NOTES Please note that the photography utilised in this listing was taken in 2023.
The access to the property is across a partially shared driveway which is utilised by 3 dwellings. For more information, please contact the office.
Contact David Burr Long Melford :
01787 883144 or [email protected]